Page top
快速链接到星空(中国)一站式服务官网其他国家/地区的网站。
星空(中国)一站式服务官网全球
请联系我们的欧洲总部。
中国(包括香港、澳门、台湾)
星空平台
产品资讯
自助服务
学习园地
新闻活动
关于星空(中国)一站式服务官网
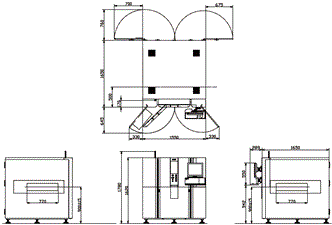
高速X射线CT断层扫描自动检查装置
信息更新: 2017年8月8日
(单位:mm)
* 请向星空(中国)一站式服务官网销售代表咨询VT-700-L加大码机器的尺寸
产品共通信息
星空(中国)一站式服务官网FA世界