Page top

NYB

工业PC平台 NY系列工业用BOXPC

NYB

兼备了高信赖性和扩展性的工业PC

NY000-AS02于2018年11月底订货截止

工业PC平台

控制演进和信息化创新的融合

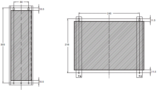
(单位:mm)

NYB 外形尺寸 1

项目 项目
外形尺寸 宽X=282mm
进深Y=195mm包含DVI连接器则Y=200mm。
高Z=88.75mm
重量 3.8kg

固定件规格

将BOX PC安装到本固定件上,并利用固定件实现功能性接地。
利用直径4~5mm的金属螺丝安装固定件。
纵向安装以及壁挂时的安装螺丝位置:

NYB 外形尺寸 2
APP下载

星空(中国)一站式服务官网FA世界